Trilocale in vendita

Milano, Via Giuseppe Ripamonti - Ripamonti Val Di Sole
€ 870.000
3 locali 3 locali
165 Mq 165 Mq
3 bagni 3 bagni

Trilocale in vendita

Milano, Via Giuseppe Ripamonti - Ripamonti Val Di Sole

Descrizione annuncio

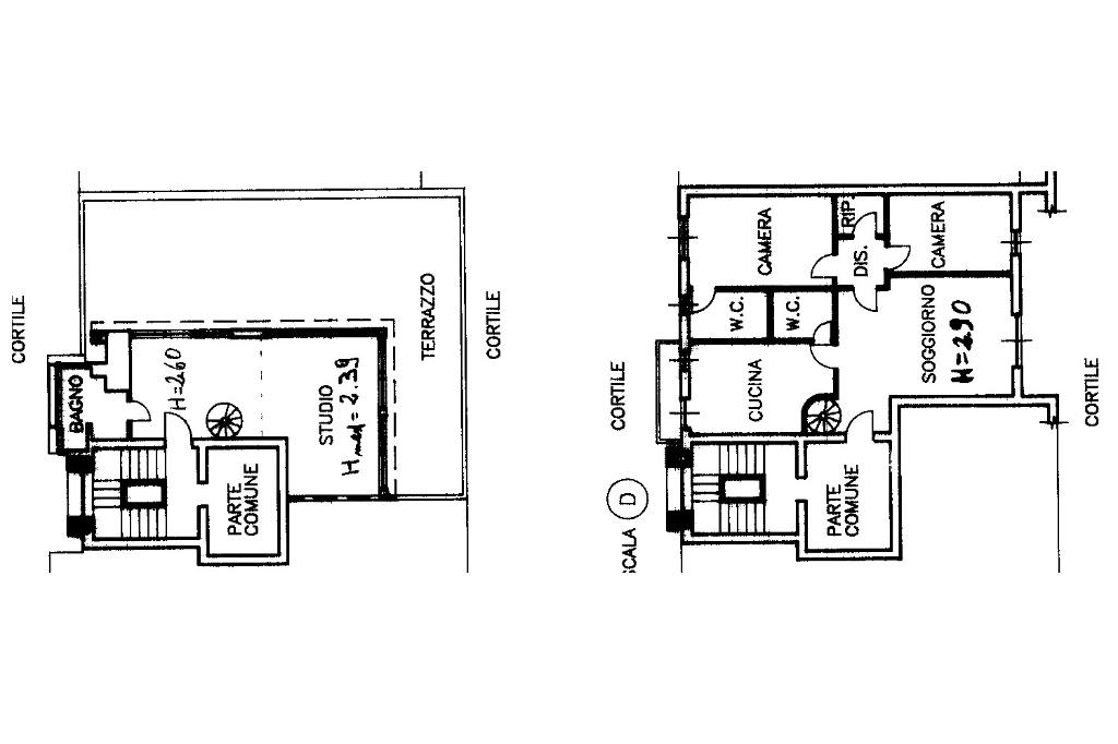
L’Agenzia Tecnocasa Val Di Sole propone in vendita attico e superattico situato in Via Giuseppe Ripamonti.

La soluzione, di circa 165mq, si sviluppa su due livelli ed è composta da ingresso su ampio e luminoso soggiorno con accesso al balcone, cucina separata ed abitabile con secondo balcone, disimpegno che conduce alla zona notte dove troviamo una camera matrimoniale con bagno in camera, cameretta e secondo bagno.

Al piano superiore si sviluppa un’ulteriore zona living con cucina a vista, ideale come area relax o spazio indipendente, con accesso diretto al terrazzo, perfetto per momenti di convivialità all’aperto e terzo bagno.

Completa la soluzione con un box di pertinenza con un prezzo di richiesta di 30.000€.

Soluzione unica nel suo genere, ideale per chi cerca spazi ampi, comfort e privacy.

Le immagini e le informazioni NON costituiscono elemento contrattuale.

Una soluzione ideale per famiglie o per chi desidera vivere in spazi ampi, funzionali e ben distribuiti, in una zona tranquilla ma comoda ai principali servizi.

Visionabile tutti giorni, previo avviso telefonico, contattare il numero: 02.83428900 (anche su whatsapp)Un nostro Agente sarà pronto a rispondere alle vostre domande con professionalità e cortesia.

Presso la nostra Agenzia Tecnocasa, è possibile su richiesta, grazie ai nostri Professionisti del Gruppo Kiron (società di mediazione creditizia), ricevere una consulenza gratuita ed accedere ad un'ampia gamma di prodotti creditizi e assicurativi come: - Mutui prima, seconda casa e ristrutturazione -Sostituzione o surroga del Mutuo - Cessioni del quinto dello stipendio o pensione - Consolidamento debiti -Prodotti assicurativi per la famiglia, ramo danni e Agenzia ha un proprio titolare ed è autonoma - Le presenti informazioni non costituiscono elemento contrattuale.

Mostra tutto

Nelle vicinanze

Trasporto pubblico Trasporto pubblico
Brenta
Brenta
2,0 Km
Abbiategrasso
Abbiategrasso
2,0 Km
Milano Porta Romana
Milano Porta Romana
2,1 Km
stazione di Milano Rogoredo
stazione di Milano Rogoredo
2,9 Km
Via Ripamonti - Via Val di Sole
Via Ripamonti - Via Val di Sole
30 m
Ricariche auto elettriche Ricariche auto elettriche
BeCharge Milano Bacchiglione
2,1 Km
A2A Corso Lodi
2,2 Km
A2A Isola Digitale Bocconi
2,3 Km
A2A Università Bocconi
2,4 Km
A2A Isola Digitale Corso Lodi
2,5 Km
Scuole Scuole
Scuola elementare Wolf Ferrari
290 m
Civica scuola di liuteria di Milano
330 m
Università degli Studi di Milano
360 m
Scuola secondaria di primo grado Arturo Toscanini
380 m
SCUOLAMOTO.IT
980 m
Farmacia Farmacia
Farmacia Val Di Sole
70 m
Lloyds Farmacia Chopin
420 m
Farmacia Dr. Rocchi
620 m
La Sapienza
1,1 Km
Farmacia Vigentina
1,3 Km
Ospedali Ospedali
Istituto Europeo di Oncologia
1,7 Km
Asl
2,0 Km
Casa di Cura La Madonnina
2,9 Km
Ospedale Gaetano Pini
2,9 Km
Supermercati Supermercati
Unes
370 m
Carrefour Market
580 m
Conad
820 m
Lidl
1,2 Km
Penny
1,2 Km
Negozi Negozi
Pane e Delizie
60 m
Forno 3
260 m
OVS
670 m
Negozi
820 m
Le Delizie del Grano
1,0 Km
Bar Bar
Tucano
480 m
Bar
970 m
Plastic
1,1 Km
Bim Bum Bar
1,2 Km
Bollani Milano 1930
1,2 Km
Ristoranti Ristoranti
Osteria SPQ
290 m
Il Riccio di Mare
310 m
Lo Stacco
330 m
Dal pugliese
500 m
Cao
510 m
Mostra tutto

Caratteristiche

Rif.:
61201233
Piano:
8 di 8 con ascensore (Piano alto)
Box:
1
Balconi:
2
Terrazzi:
1
Camere da letto:
2
Mostra tutto
Prezzo Prezzo
€ 870.000
Rata mutuo Rata mutuo
€ 4.101 / mese
Spese annue Spese annue
€ 5.400
Proponi il tuo prezzoProponi il tuo prezzo

Classe Energetica

F
F
F
F
F
F
F
F
F
EP globale non rinnovabile:
192.22 kW h/m² anno
EP globale rinnovabile:
192.22 kW h/m² anno
Anno di costruzione:
1965
Riscaldamento:
Centralizzato
Tipo impianto:
A radiatori
Tipo alimentazione:
Metano

Ti interessa visionare l'immobile?

Fissa un appuntamento  Fissa un appuntamento

Richiedi informazioni

Clicca su Leggi per aprire l'informativa
* Questi campi sono obbligatori

Calcola il tuo mutuo

Semplice e senza impegno
Anticipo

( % )
Mutuo

( % )

pochi semplici passi

inserisci i tuoi dati
Questionario completato
Grazie per aver richiesto un appuntamento senza impegno con un nostro Consulente del Credito e Assicurativo.

Hai inserito correttamente tutti i dati necessari e a breve riceverai una e-mail con un link da convalidare per inviare i tuoi dati.
Affiliato
Mercurio Case Srl
Via De Guarneri, 24 20123 Milano (MI)

Il nostro staff


  • Andrea Battistoni
    Responsabile

  • Claudia Ciavattella
    Responsabile

  • Nicola Emma
    Affiliato

  • Felice Papa
    Responsabile

  • Marco Pisani
    Responsabile

  • Dafne Saladino
    Coordinatrice

  • Roberta Santagada
    Collaboratrice
Via De Guarneri, 24 20123 Milano (MI)
Zona: Ripamonti - Val di Sole - Qr. Fatima - Vigentino
Mostra su mappa
Orari: Lunedì - Venerdì 09.00 - 20.00 Sabato 09.00 - 13.00
Affiliato
Mercurio Case Srl
Via De Guarneri, 24 20123 Milano (MI)

2026 Tecnocasa Franchising S.p.A. - P. IVA 08365160152 - Via Monte Bianco 60/A 20089 Rozzano (MI). Ogni agenzia ha un proprio titolare ed è autonoma. Privacy policy | Policy utilizzo | Cookie policy